來到上海閔行區馬橋銀春路富才路交匯處,就可以看到龍湖·天瑯項目,則靈藝術受邀進行天瑯聯排商務公館展示樣板間的軟裝設計。

則靈藝術認為,從國外發達國家的經驗來看,都會城市郊區化成為更大可能。如美國紐約,富足的中產階級更多選擇來到郊區生活,他們去到了澤西市、紐瓦克、伊麗莎白等紐約周邊生活,在不斷郊區化過程中,形成了眾多小型區域中心,最終這些區域中心成就了紐約大都市圈。而這種郊區化的形式能否成功,取決于是否有足夠高品質的物業,住宅、商業、辦公空間等等,需要滿足區域內的人群自成一脈的生活方式。這群人有良好的受教育程度,足夠高的審美能力與國際視野,對于品質、個性、時尚有很高的要求。正如天瑯,位置處于上海提出的多個近郊區域中心之一,交通便利,住宅聚集,將吸引高端品味人士關注。

商務公館應規劃何種辦公空間的展示,從對可能選擇該區域的客群入手,在分析商務公館各項條件后,認為此處更適合一個高端的,創業期或發展期的小型企業,多方溝通后,一家服裝高定工作室FERN STYLISTS誕生了。業主Fern Wu,時尚、精致、簡約,這也是天瑯潛在客群的共性特征。從用戶的角度出發,營造這類人群追求的辦公體驗。

工作室的室內設計由集艾設計擔綱,合作過程中緊密溝通,并且,則靈藝術將室內的設計元素沿用到軟裝設計上,力求從設計語言上保持一致,實現軟硬裝融合。
“這個高定空間的設計,我們要面對的客戶是絕對的菁英階層,他們欣賞自我,品位非凡。” 不拘囿于風格,以強烈又鮮明的現代手法雕琢空間,用時尚優雅的色彩點染空間,借助富有層次感的藝術陳設,詮釋出獨特的現代簡約之美。





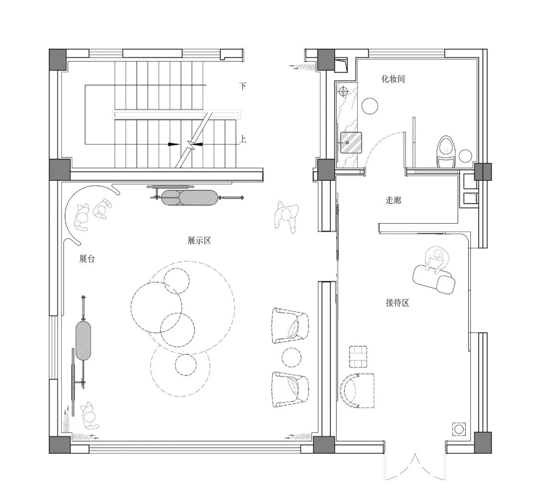
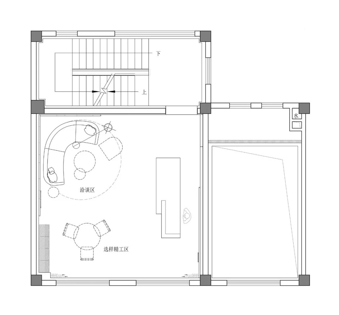
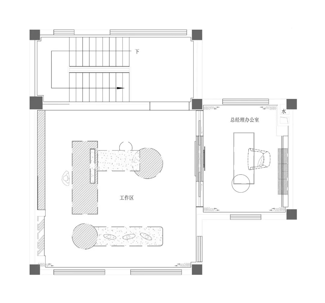
工作室1F設定為招待展示區,可以在此處對這家工作室的產品有個基礎了解;2F供深度洽談以及選樣;3F則是設計師們的工作區域;為工作室的重要客人和朋友,規劃了夾層空間,可以進行私密高級的聚會,同時此處還承擔舉行發布會的功能。
在這里,有私享,亦有交流;有脫離,亦有融合;有當下,亦有夢想。



在1F成衣、飾品、配飾展示廳,幾何圖形與線、面的搭配,呈現時尚又不失大氣,大面積的高級灰,大理石、金屬等搭配精致而富有藝術感,連貫而富有詩意地形成空間的優雅品位。








2F相對私密的洽談空間,家具同樣以自然幾何形態置入,圓形的茶幾、流線型的沙發、發光藝術裝置掛畫,讓空間既高雅又舒適。
3F主要陳設了Fern Wu的工作流水臺——從小樣、色板、材質展示到毛料裁縫臺一應俱全——稀有、歷史感和手工定制是該空間的標志。




3F主要陳設了Fern Wu的工作流水臺——從小樣、色板、材質展示到毛料裁縫臺一應俱全——稀有、歷史感和手工定制是該空間的標志。


設計挖掘空間隱喻的深度與廣度,利用圓形、矩形燈幾何圖形對整個空間進行重新的審視和設計,交織、碰撞、個性化陳設帶來別樣感官體驗。






真正的藝術呈現是基于生活的形式與意義的再處理,為空間賦予獨特的藝術知覺。夾層的空間功能是私密聚會和服裝發布,設計營造氛圍,向參與者發出邀請。
為改善下沉空間光線不足的壓抑感,讓空間更為靈動,在內斂、沉穩的灰咖色及木色調之上,大膽明媚的陳設使空間具有鮮活的生命力,視覺張力顯露無疑,喚醒人們直覺上的共鳴——放松、停駐、欣賞與思考。

則靈藝術認為,任何設計都是關于人的設計,人在室內的行走坐臥,塑造了空間的韻味與氣質。在上海天瑯聯排商務公館的設計中,則靈藝術致力于用設計呈現用戶對未來的憧憬與美好的想象,幫助甲方實現商業利益。
▽
設計圖紙

一層 平面圖

二層 平面圖

三層 平面圖

夾層 平面圖
項目名稱:上海龍湖·天瑯
開發商:龍湖集團
室內面積:400㎡
軟裝設計:深圳市則靈文化藝術有限公司
室內設計:集艾室內設計(上海)有限公司
攝影:三像攝 陸彬

則靈藝術代表作

合肥萬科天下藝境銷售中心

佛山中洲府售樓部

綠地滇池國際健康城售樓部

深圳萬科天琴灣別墅

昆明中航云璽大宅別墅
深圳市則靈文化藝術有限公司,創辦于1999年,是中國房地產領域室內與軟裝設計的先行者。我們的業務涵蓋會所、售樓處、別墅、樣板房的室內設計及軟裝設計,并為地產行業領先客戶提供整體精裝修標準研發及設計服務,是萬科、龍湖、金地、中航、東原等一線房地產開發企業的長期戰略合作伙伴。
則靈藝術始終堅持并信仰:美是普遍的愉悅感受。19年來,我們對“愉悅感”的追求始終如一,歷經多年的探索與積累,以用戶對幸福的憧憬和美好想象為思考之源,用獨特的設計語言呈現出生活之美,如流水一般清澈雋永,又如陽光一般明媚多情,禮贊自然且富于變化,有著強烈又鮮明的現代性。





